Gå til: Plantegning | Fasade | Kontaktskjema
1112+
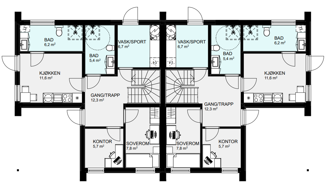
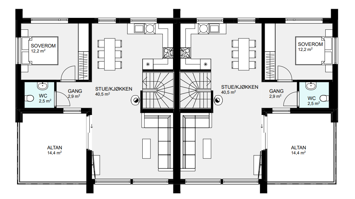
Denne stilrene og moderne tomannsboligen har to identiske boenheter med fire soverom, to bad og et kontor. I tillegg har boligen et praktisk vaskerom med egen utgang. I boligens andre etasje finner du en stor og romslig stue-/kjøkkensone, perfekt for deg som vil samle familie og venner. Herfra kan du også ta deg ut på boligens altan.
TEKNISK DATA
PLANTEGNING
ØNSKER DU MER INFORMASJON?
FYLL UT SKJEMAET, SÅ KONTAKTER VI DEG FOR EN HYGGELIG BOLIGPRAT
ARKITEKT
ALT KAN TILPASSES FOR Å IMØTEKOMME DERES ØNSKER OG BEHOV
Fordelene med å bygge et helt nytt hus, er at du kan få det akkurat slik som du vil. Trolig finner du en husmodell i vår katalog som kan passe, men kanskje ønsker du å tilpasse boligen etter egne ønsker og behov.
Vi vil gjøre vårt ytterste for at du skal bli fornøyd, og hjelper deg hele veien fra idé til ferdig bolig. Vi har fagkunnskap og gir gode råd for at du skal få bygget en bolig som passer deg helt perfekt.»







